Scheda immobile:

Villa a Schiera - Vendita 192 mq.

Morazzone

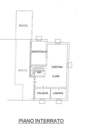
MORAZZONE Via Castronno 36/A in zona servita ma in un recente complesso residenziale molto tranquillo e ben abitato composto da quattro ville, proponiamo in vendita esclusiva questa splendida Villa a schiera di testa dotata dei più moderni impianti, come il riscaldamento a pavimento, predisposizione pannelli solari, impianto antifurto interno/esterno, impianto di videosorveglianza e molto altro. L'abitazione accoglie l'ospite al piano terra nell'ampia zona giorno con lo splendido affaccio sul giardino ed il relativo patio, che richiama già a cene estive all'aperto in famiglia o con le persone per noi più importanti. Sempre al piano terra troviamo la comoda cucina abitabile, un bagno e un disimpegno. Le eleganti scale, che non incidono nella vivibilità del soggiorno, portano al piano primo nel quale troviamo tre camere, di cui una con affaccio su un comodo terrazzo, ed il secondo bagno. Il piano interrato è composto da un'ampia taverna con stufa a pellet, un ripostiglio, il terzo bagno/lavanderia e il locale caldaia. Scegliere questa abitazione vuol dire cogliere l'opportunità di vivere in un ambiente rinnovato, ad un passo dalle principali arterie viarie della città ma al contempo godere di privacy e tranquillità.


mq. 192
Camere da letto: 3
Bagni: 3
Box auto: 2
Riscaldamento: autonomo

378.000,00€


Non divulgheremo il tuo indirizzo a nessun altro.
Autorizzo al trattamento dei dati per la richiesta in oggetto. Consenso esplicito secondo il D.Lgs 196/2003. privacy policy